Atobá










































Entre arte, arquitetura e paisagem
Vencedor do Prêmio IAB-RJ 2025 na Categoria Edifícios Multifamiliares
Selecionado para o anuário da Revista Projeto 2026
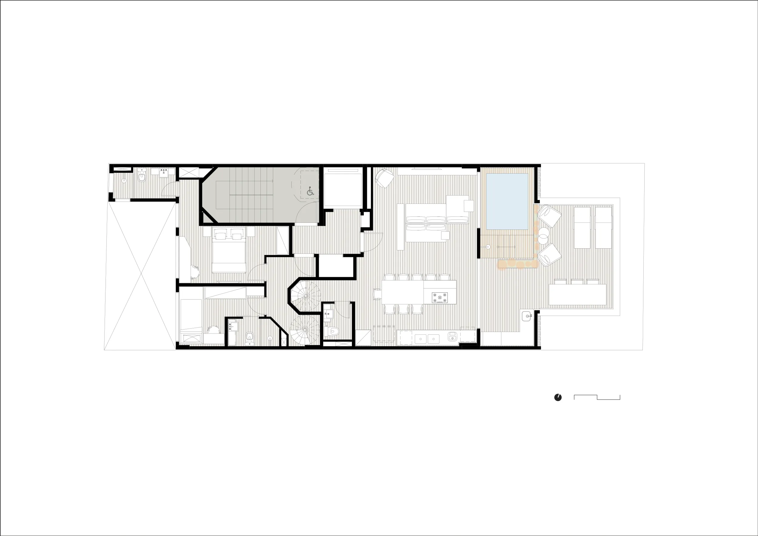
O Edifício Atobá, localizado no coração do Leblon, é uma celebração à cultura e à sofisticação do bairro. Integrando arte e arquitetura, o projeto explora soluções criativas para o terreno estreito, com uma divisão simétrica que organiza as unidades residenciais e define a harmonia da composição arquitetônica. A fachada é protagonizada por um painel exclusivo do renomado artista Daniel Senise, cujos tons serenos evocam a luz tropical, a areia e o entardecer, refletindo a essência do Rio de Janeiro.
Além do painel, os cobogós, desenhados especialmente para o projeto, desempenham um papel estético e funcional. Esses elementos criam jogos de luz e sombra, filtram a visão para a rua e garantem maior privacidade aos moradores. Materiais naturais e duráveis, como granito branco siena e alumínio, foram utilizados para preservar a elegância e a qualidade do edifício ao longo do tempo. A iluminação planejada evidencia volumes arquitetônicos e realça o contraste entre os cheios e vazios, enriquecendo a percepção visual do edifício.
Com apenas cinco unidades residenciais exclusivas, variando entre 40 m² e 170 m², o Atobá combina áreas sociais amplas e conectadas, como grandes varandas, com privacidade e conforto. É um edifício original, uma escultura que abraça a arte e que, generosamente, se entrega à cidade.
Confira mais sobre esse projeto no nosso canal do Youtube!
uso Residencial
área 990,88m²
local Leblon, Rio de Janeiro - RJ
ano 2020
cliente Mozak Empreendimentos
status Concluído
projeto de arquitetura Celso Rayol e Fernando Costa
coordenadores de projeto Daniel Osório, Lúcia Andrezo, Thiago Godoy, Vanessa Moreira, André Caterina
equipe Ana Terra Vettori, Eduardo Romano, Leonardo Leal, Luiza Melo e Pedro Brito
imagens Studio Vir
fotos Pedro Mascaro
acústica Echo Arquitetura
automação M2 Projetos de Tecnologia
comunicação visual Porú
consultoria de alumínio QMD Consultoria
estrutura Meyer & Pedroso Engenharia
fundação ABS
impermeabilização GTI Projetos
instalações Green Gold Engenharia
interiores Bianca da Hora
Irrigação Hibritec
luminotécnica Chiaradia + Gayoso
piscina Hibritec