Carmela Dutra 93




























































Harmonia modernista
Este é um projeto pioneiro dentro da produção do escritório. Com um desenho total, a Cité assina o projeto legal, executivo, detalhamento, interiores, comunicação visual, paisagismo, folder de vendas e logomarca, esta última em parceria com a empresa Júlio Bogoricin. A abrangência de todos esses itens torna o edifício coerente em todos os seus aspectos e elementos.
Na fachada, houve um resgate aos elementos modernistas com as litocerâmicas tradicionais e o concreto aparente. Esses materiais estão dispostos de forma a não fragmentar os diversos elementos compositivos da fachada, mas torna-los volumes inteiros. A escala do edifício, com apenas sete pavimentos, também foi um fator decisivo de projeto, pois permite a percepção dos detalhes presentes na fachada.
No hall de acesso há um mapa do entorno, com os pontos de acessibilidade da cidade marcados de forma a tornar o deslocamento peatonal e por transporte público mais fácil, eficiente e didático. Essa é uma das formas que a arquitetura pode ajudar a melhorar a mobilidade da cidade.
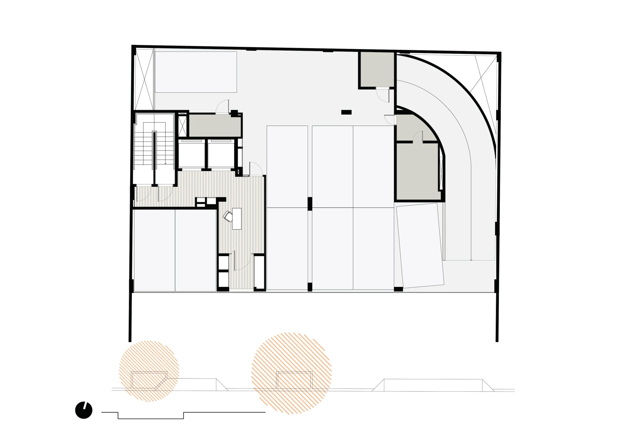
O edifício é composto por quinze apartamentos, três por andar sendo duas unidades de 2 quartos e uma de 3 quartos. As metragens variam de 65 a 85m² e todas as unidades possuem varandas de aproximadamente 12m².
uso Residencial
área 2.600 m²
local Tijuca, Rio de Janeiro - RJ
ano 2014
cliente SENPRO Engenharia
status Concluído
projeto de arquitetura e interiores Celso Rayol e Fernando Costa
gerentes de projeto Beatriz Aguiar e Lúcia Andrezo
coordenadores de projeto Alane Oliveira, Daniel Osório e Francisco Meyer
equipe Ana Clara Meirelles, Ana Lúcia Morais, André Caterina, Sorin Helbig, Thiago Pessoa e Vitor Vieira
fotografia Renato Tepedino
estrutura S Brasil Engenharia
instalações Barbo Engenharia
marketing Júlio Bogoricin