Epitácio 3714


























































O tempo dentro do templo
Vencedor projeto de prédio Residencial de pequeno porte – Ademi-RJ
Localizado em terreno onde por anos existiu um esqueleto estrutural sem uso, o projeto está debruçado sobre a vista ampla da Lagoa Rodrigo de Freitas, na Zona Sul do Rio. Quando pensávamos que atmosfera deveríamos trazer aos espaços, a frase “o tempo dentro do templo” acabou sendo uma síntese do que imaginamos.
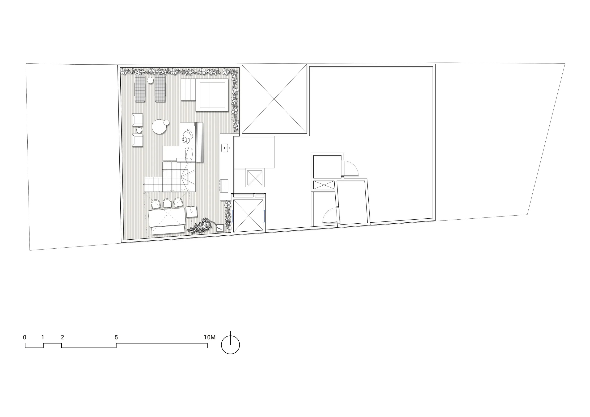
O passar das nuvens refletido sobre as águas da Lagoa, o vento que passa entre as folhas das árvores e o sol que nasce e se põe por detrás do relevo de montanhas são partes elementares do projeto. Se a casa é nosso templo do dia-a-dia, é o maior objetivo da arquitetura criada por nós valorizar as horas que passamos dentro dela, marcadas no projeto pela projeção das sombras do ripado de madeira que cobre o teto das generosas varandas, como uma espécie de relógio-de-sol.
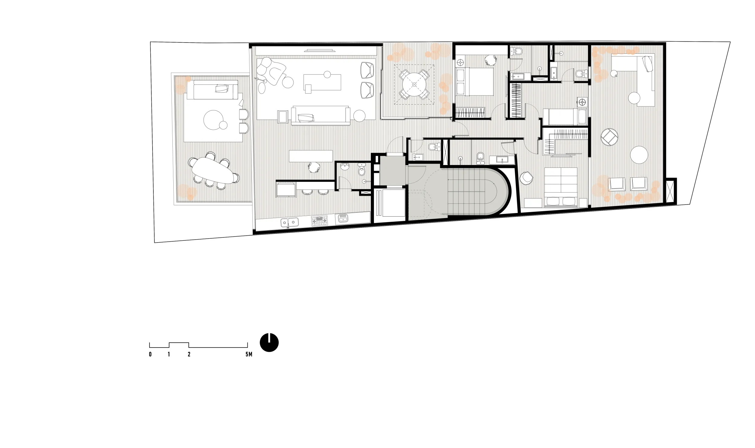
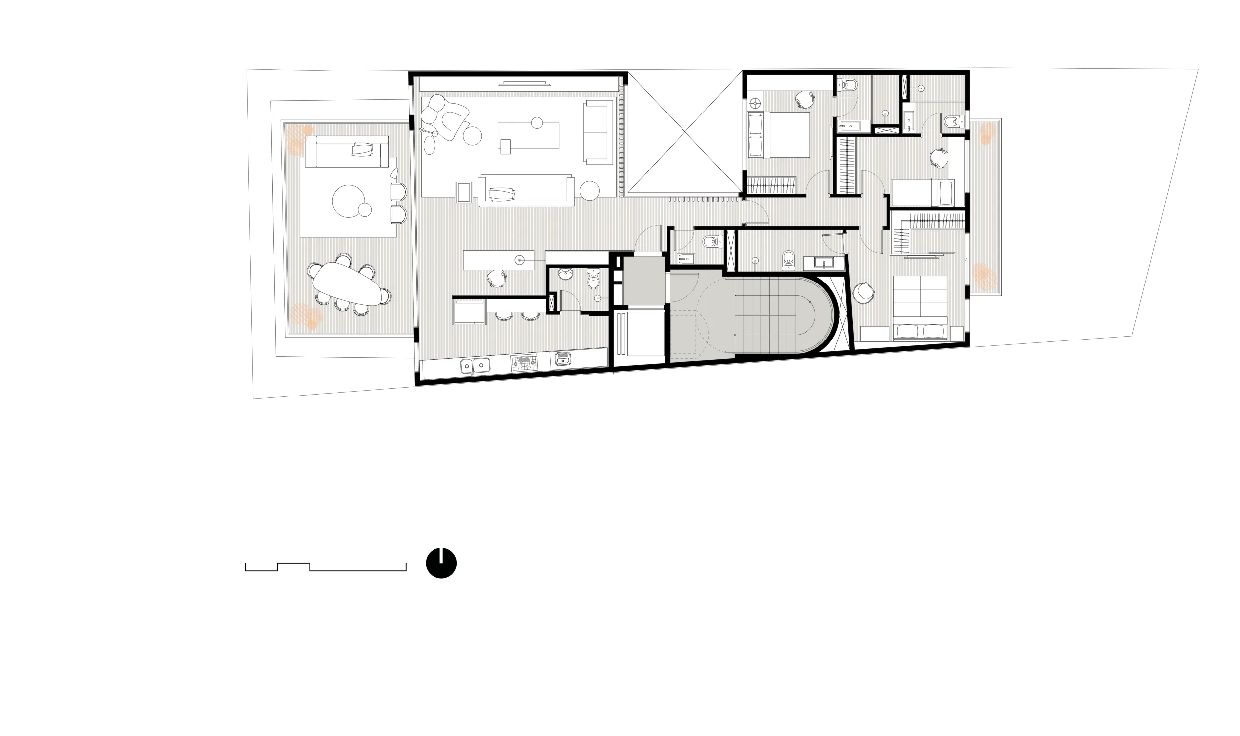
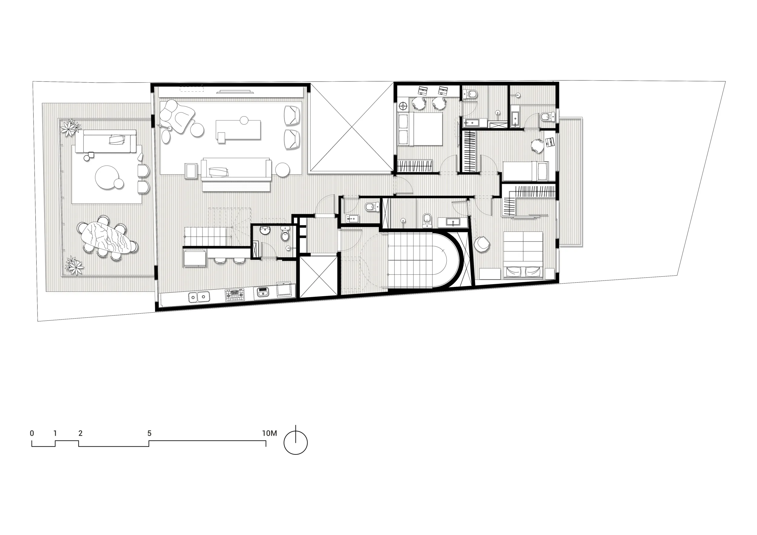
O desenho da planta busca reforçar essas qualidades espaciais e ambientais. A ampla varanda, com diversas possibilidades de ocupação, se abre para toda a sala em portas de correr de vidro voltadas para a paisagem da Lagoa. A abertura franca entre o interno e externo busca aproveitar ao máximo a vista e, ao mesmo tempo, garantir conforto ambiental. Quanto à implantação, em um terreno estreito, sem afastamentos laterais e com fundos junto à topografia acentuada do Mirante do Sacopã, o desenho de um prisma central generoso, gerado a partir do deslocamento entre o íntimo e o privado, possibilita a ventilação cruzada ao longo de todo o apartamento, garantindo maior conforto aos moradores.
Propondo o uso mínimo de elementos, de forma a potencializar o desenho da luz sobre a fachada, cores terrosas e texturas amadeiradas recobrem o projeto. A discrição do embasamento, com a chegada mimetizada ao fundo, busca dar ainda mais destaque à volumetria das varandas em balanço e seu desenho sobre o passeio com o passar do dia.
Clique aqui e assista o vídeo sobre esse projeto em nosso canal do youtube!
Uso Residencial
área 1.215,14 m²
local Lagoa, Rio de Janeiro - RJ
ano 2020
cliente TAO Empreendimentos
status Concluído
projeto de arquitetura, interiores e comunicação visual Celso Rayol e Fernando Costa
coordenadores de projeto André Caterina, Daniel Osório, Lúcia Andrezo, Thiago Godoy e Vanessa Moreira
equipe Ana Terra, Bianca Naylor, Daniela França, Daniela Lagoudakis, Eduarda Volschan, Eduardo Romano, Isadora Coelho, Leonardo Leal, Lilian Vieira, Luísa Linden, Luiza Melo, Maria Luiza Peixoto e Victoria Michelini
fotos Fábio Seixo
ancoragem Aranhas Ancoragem Predial
automação Casa do Futuro
consultoria de alumínio B&G Arquitetura Consultiva Alumínio e Vidro
drenagem Seicor Projetos e Obras Ltda.
elevador TKE
esgoto RDB Engenharia
estrutura de concreto SOMA Engenharia Ltda
estrutura metálica Abilitá Projetos Estruturais
fundação ABS Fundações
furação RDB Engenharia
impermeabilização GTI Projetos e Consultoria
incêndio Hidrofire
instalações mecânicas Flowair
instalações prediais RDB Engenharia
topografia Meta Topografia
materiais e equipamentos Thyssenkrupp, Deca, Portobello, Suvinil, Coral, Ibratin, Santa Luzia, Sigma Stones, Fórmica, Pial, La Fonte, Ezy Color, ELLEVE, Mekal, Tramontina, Sincenet, Electrolux, Tok&Stok, NOS Furniture, Jader de Almeida, Santo André, Harmony Stones, Estudio Bola e Fortlev