Paysandu 23















































Harmonia entre o presente e o passado
Vencedor no Destaques Ademi-RJ 2022 nas categorias Retrofit e Empreendimento Residencial de Médio Porte Histórico e Contemporâneo
Vencedor do prêmio Sérgio Bernardes AsBEA/RJ de Arquitetura 2024 na categoria Projetos de Requalificação
Vencedor do Prêmio IAB/RJ 2024 na categoria Retrofit
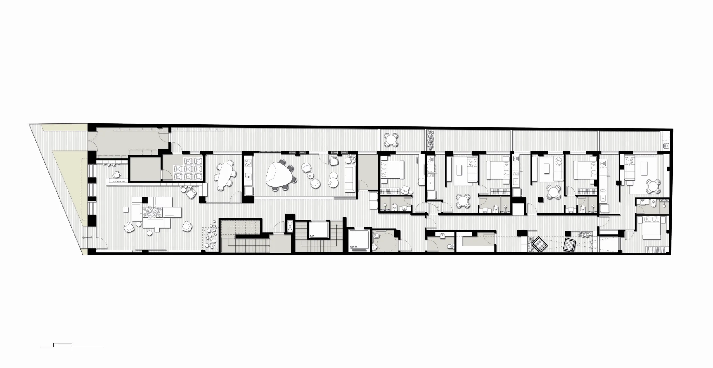
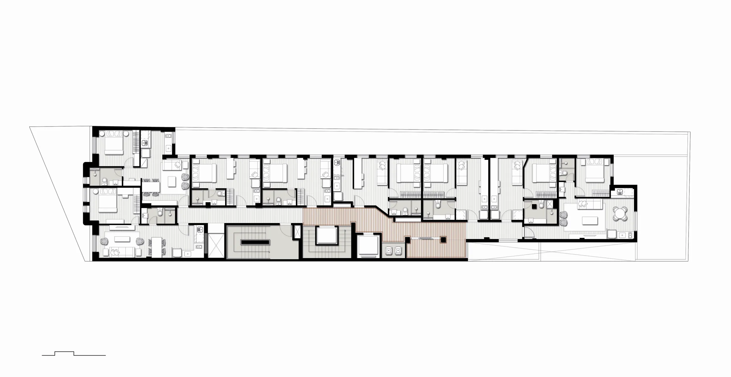
O projeto para a transformação do Hotel Paysandu em um edifício residencial partiu da premissa de preservar e recuperar a arquitetura do hotel com intuito de devolvê-lo à cidade com uma nova vida, que acompanhasse o habitar contemporâneo e suas preocupações atuais. A intenção do projeto é olhar para o futuro com respeito ao passado, um trabalho importante de manutenção da memória da cidade. Sendo assim, começamos o projeto garantindo a recuperação da fachada e a manutenção de elementos arquitetônicos icônicos que marcaram e ainda marcam a Rua Paissandu.
Pensamos os espaços interiores alinhados com a estética e a vivência contemporânea, trazendo unidades compactas e espaços compartilhados que oferecem mais serviço e eficiência para vida cotidiana de quem habita o edifício. Com intuito de preservar a memória de forma a agregar à contemporaneidade da decoração, criamos uma composição com as portas dos armários do antigo hotel que, junto à iluminação, criam uma ambiência voltada para a memória do passado e a inovação do futuro. Essas composições ocorrem no lobby e no salão gourmet do pavimento térreo e contam com 72 portas retiradas do campo de demolição, evitando o acúmulo de entulhos.
uso Residencial
área 3.016,67 m²
local Flamengo, Rio de Janeiro - RJ
ano 2020
cliente PIIMO Empreendimentos Imobiliários
status Concluído
projeto de arquitetura Celso Rayol e Fernando Costa
coordenadores de projeto André Caterina, Daniel Osório, Lúcia Andrezo, Thiago Godoy e Vanessa Moreira
equipe : Daniela Lagoudakis, Maria Luiza Peixoto, Leonardo Milano, Camilla Rocha, Giovanna Soares, Katia Alves
fotos Pedro Vannucchi
interiores: Cité Arquitetura
luminotécnica: Maneco Quinderé e Associados Iluminação
paisagismo: Burle Marx Escritório de Paisagismo
restauro: Vidal & Vilhena Escritório de Arquitetura
elevador: Schindler
consultoria de alumínio: MBP Consultoria de Esquadrias Ltda.
estrutura: SOMA Engenharia Ltda.
estrutura metálica: SIGMA Consultoria & Projetos
fundação: ABS Engenharia, Fundações, Geotecnia
incêndio: Hidrocenter Sistemas contra Incêndios Ltda.
instalações mecânicas: Diffusion
instalações prediais: Hemar Instalações Elétricas e Hidráulicas
topografia: Meta Topografia