Spotlight Jardim Botafogo
























Mirante da paisagem
Indicado ao prêmio Obra do Ano 2024 na categoria Arquitetura Residencial pelo ArchDaily Brasil
Vencedor no Destaque Ademi 2022 na categoria Empreendimento Residencial de Grande Porte
Vencedor no Build Awards 2020 na categoria Residential Buildings pela revista britânica BUILD Magazine
Menção Honrosa no Prêmio Sérgio Bernardes AsBEA-RJ de Arquitetura 2024 categoria Edifícios e Conjuntos Residenciais
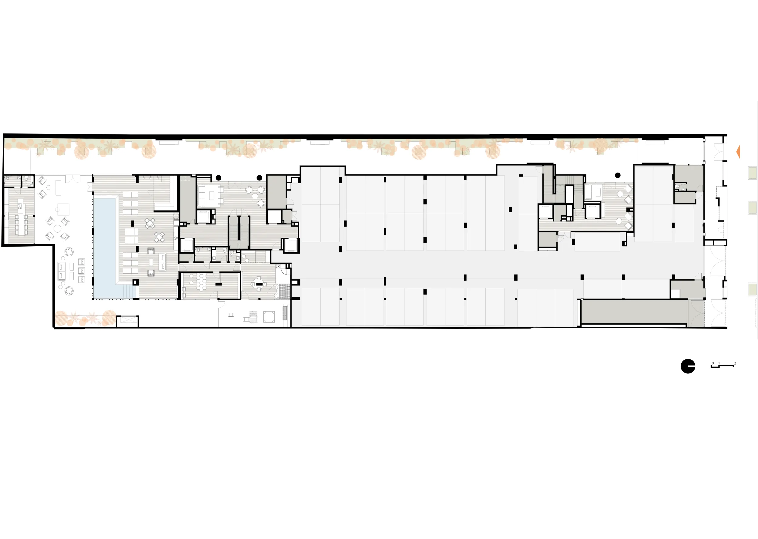
Localizado em Botafogo, o projeto compõe o conjunto arquitetônico proposto para essa quadra junto ao Highlight. Com acesso pela Rua General Severiano, que desemboca na entrada do parque do Morro do Pasmado, o Spotlight encontra-se com uma relação urbana distinta quando comparada à Avenida Lauro Sodré, onde está o Highlight. Com menos movimento de carros e pessoas e caráter residencial, o entorno do lote propõe maior introspecção.
Essa análise leva a uma proposta sem térreo comercial, com uma aproximação maior entre o nível residencial e o rés do chão, adicionando, inclusive, unidades garden no primeiro pavimento, remetendo aos quintais de uma casa. O embasamento preserva as cores terrosas presentes no Highlight e mantem uma coesão visual entre os dois projetos. Além disso, conta também com uma ligação para pedestres entre os dois terrenos, possibilitando um compartilhamento de áreas comuns e um cruzamento intra-quadra para os moradores, com saídas para a Avenida Lauro Sodré e a Rua General Severiano.
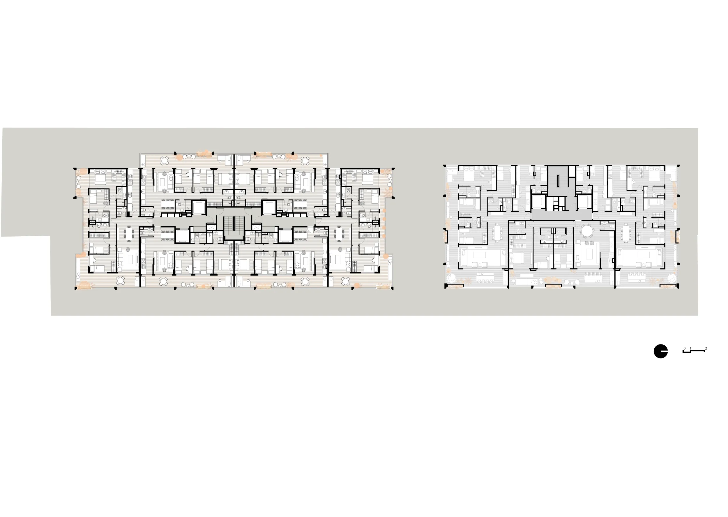
Com duas torres residenciais, implantadas linearmente, e uma fachada para a rua, o Spotlight possui unidades de três e quatro quartos, todas seja por seus quintais, varandas ou terraços. Aqui os blocos assumem de maneira mais enfática a característica de mirantes urbanos, possibilitando o enquadramento das paisagens circundantes pelo morador. Enquanto a relação com a paisagem no Highlight ocorre de forma franca, no Spotlight surgem molduras, filtrando a relação com a cidade e sugerindo uma relação mais bucólica, sobretudo ao introduzir a textura amadeirada.
uso Residencial
área 17.118,44 m²
local Rio de Janeiro, RJ
ano 2018
cliente Opportunity e PERFORMANCE Empreendimentos Imobiliários
status Concluído
projeto de arquitetura e fachada Celso Rayol e Fernando Costa
coordenadores de projeto André Caterina, Daniel Osório, Lúcia Andrezo, Thiago Godoy e Vanessa Moreira
equipe Ana Terra Vettori, Eduardo Romano, Fabiana Melo, Gabriela Sales, Giselle Costa, Isadora Coelho, Júlia de Queiroz, Kátia Alves, Leonardo Leal, Leonardo Milano, Lila Monteiro, Luisa Linden, Luiz Eduardo Rayol, Luiza Loureiro, Luiza Melo, Mariana Neto, Mateus Fragoso, Nicholas Manso, Pedro Brito, Rachel Tonietto, Renata Oliveira, Romário dos Anjos, Thamires Carrilho, Thiago Lopes, Victoria Michelini
fotos Pedro Vannucchi e Dani Leite
acústica Traço Verde Arquitetura Ambiental
ancoragem FHX
automação Casa do Futuro
comunicação visual Ilustre Ideia Estúdio Criativo
consultoria de alumínio Grupo Paris Vidro e Alumínio
elevadores ThyssenKrupp
estrutura Adler Projetos Estruturais
estrutura metálica Abilitá Projetos Estruturais
executivo Cité Arquitetura
fundações ABS Engenharia Fundações Geotecnia
furação Adler Projetos Estruturais
impermeabilização GTI Projetos e Consultoria
incêndio Prinst Engenharia de Segurança
instalações mecânicas Flowair
instalações prediais AQ Projetos de Instalações Ltda
interiores André Piva Arquitetura
luminotécnica RBF Arquitetura de Iluminação
paisagismo Sá&Almeida Arquitetura e Paisagismo
piscina Aqualar
topografia TopTec
materiais e equipamentos Força Carioca, Portobello S.A., Eliane, Thyssenkrupp, Deca, Ibratin, Santa Luzia, Suvinil, Pial, La Fonte, Yale, Tramontina, Itanova, Celite, Alucomaxx